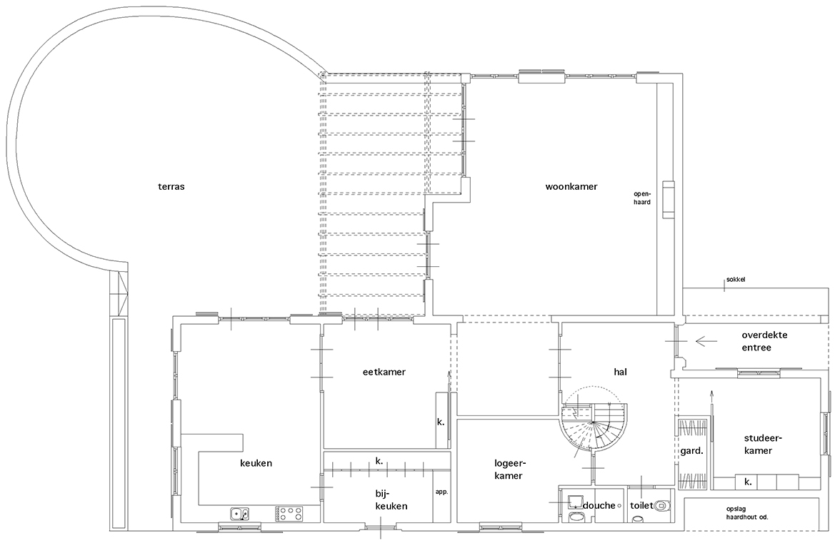
Vleysmanlaan Wassenaar
Renovatie en uitbreiding villa in samenwerking met Durieux Hoek Architecten.
Werkzaamheden: Ontwerp, aanvraag omgevingsvergunning, bestek- en werktekeningen.
architectenbureau Atelier Ouwehand Leiden
architectenbureau Atelier Ouwehand Leiden
architectenbureau Atelier Ouwehand Leiden